Search

Leave a Message

Thank you for your message. I will be in touch with you shortly.

Explore Our Properties

Property Description

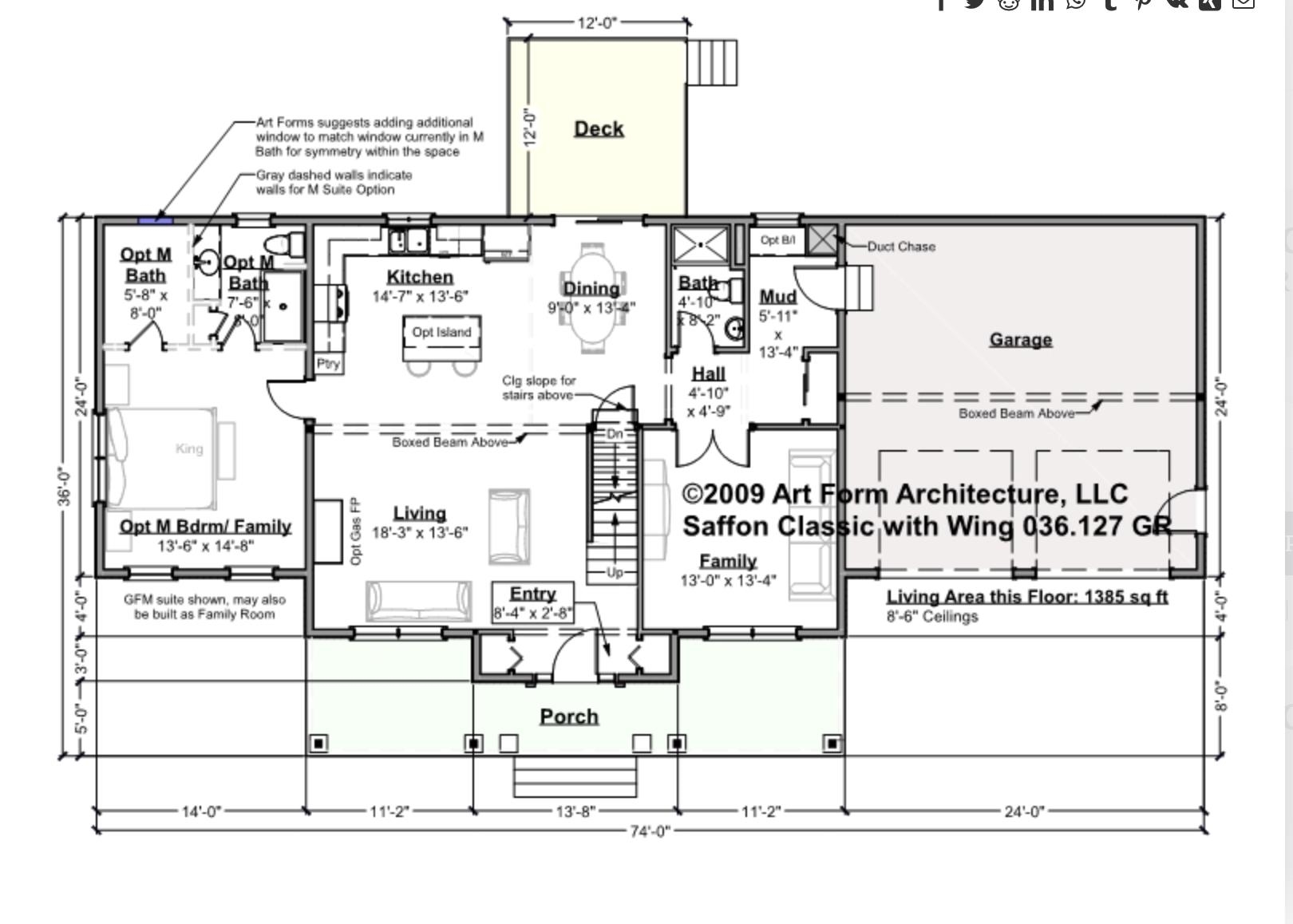
Construction has begun with a projected late spring/early summer completion--introducing the Saffron Floor Plan, ideally situated on nearly 2 acres in the heart of Bedford. This elegant Cape-style home offers timeless design paired with modern functionality, featuring a welcoming front porch, open-concept living spaces, and soaring ceilings throughout. The spacious living room is thoughtfully designed with shadow box molding, a gas fireplace, and custom built-ins--perfect for both everyday living and entertaining. The gourmet kitchen serves as the centerpiece of the home, with generous allowances that allow you to select your preferred finishes, cabinetry, countertops, and appliances. The main level also includes a private study, dining area, mudroom with custom built-ins, an oversized great room, and a screened porch overlooking the expansive yard. Upstairs, you'll find four bedrooms, including a luxurious primary suite with a spa-like bath, along with a convenient second-floor laundry room. Additional living space can be created with the option to finish approximately 1,000 sq ft in the lower level (upgrade)--ideal for a recreation room, guest suite, or home theater. Built with energy efficiency in mind, this home offers both comfort and sustainability. There is still time to personalize your selections and finishes. Flexible layout options include a first-floor primary suite or great room. Experience exceptional craftsmanship and upscale living--your dream home awaits. Open houses held weekly; see listing for details.

Overview

Open House
4/25/2026 11:00AM - 12:30PM EDT
Property Status
For Sale
Lot Size
1.65 Acres
MLS ID
5073663
Property Type
Residential
Year Built
2026

Features & Amenities

Total Area
4,229 Sq.Ft.
Neighborhood
Bedford
Stories
2
Garage Spaces
2.0
Roof
Asphalt Shingle
Lot Features
Landscaped
Heat Type
Propane, Forced Air
Air Conditioning
Central AC
Sewer
Private
Elementary School
Memorial School
Middle School
Ross A Lurgio Middle School
High School
Bedford High School
School District
Bedford Central School District
Sales Price
$1,399,900

Downloads

Lot 3 Westview Road Unit: Lot 3 - The Saffron Floor Plan

Schedule a Tour

We would love to help you see this beautiful home! As a full-service brokerage, we can help you tour. Please submit an offer, and answer questions about the buying process.

Thank you

for your interest in Lot 3 Westview Road Unit: Lot 3 - The Saffron Floor Plan, Bedford, NH 03110

Lot 3 Westview Road Unit: Lot 3 - The Saffron Floor Plan
Navigate
Bedford

Explore Bedford

read more

Mortgage Calculator

Estimate your monthly mortgage payment, including the principal and interest, property taxes, and HOA. Adjust the values to generate a more accurate rate.
$0,000 Your Payment 20 15 65
$0,000 Your Payment

I'm Interested In

Lot 3 Westview Road Unit: Lot 3 - The Saffron Floor Plan

or
  • CallCheryl Zarella

    License #NH 063563 | MA 9583550

    (603) 714-5647
  • Your Next Move is Just a Click Away

    Current Listings

    From serene country estates to sophisticated city residences, our current listings showcase the best the market has to offer.Start your journey to luxury living today.

    • 00 Lindsay Road For Sale

      $2,250,000

      00 Lindsay Road, Alton, NH 03810

    • Lot 6 Aisling Lane Unit: Lot 6 - The Silverton Active Under Contract

      $2,200,000

      Lot 6 Aisling Lane Unit: Lot 6 - The Silverton, Bedford, NH 03110

      • 4 Beds
      • 5 Baths
      • 4,400 Sq.Ft.
    • 17 Canterbury Lane For Sale

      $1,790,000

      17 Canterbury Lane, Bedford, NH 03110

      • 5 Beds
      • 6 Baths
      • 5,906 Sq.Ft.
    • Lot 7 Jenkins Road Pending

      $1,695,000

      Lot 7 Jenkins Road, Bedford, NH 03110

      • 4 Beds
      • 4 Baths
      • 3,400 Sq.Ft.
    • Lot 4 Westview Road Unit: Lot 4 - Hannah Floor Plan Active Under Contract

      $1,499,900

      Lot 4 Westview Road Unit: Lot 4 - Hannah Floor Plan, Bedford, NH 03110

      • 4 Beds
      • 4 Baths
      • 4,200 Sq.Ft.
    • Lot 3 Westview Road Unit: Lot 3 - The Saffron Floor Plan For Sale

      $1,399,900

      Lot 3 Westview Road Unit: Lot 3 - The Saffron Floor Plan, Bedford, NH 03110

      • 4 Beds
      • 3 Baths
      • 2,844 Sq.Ft.
    • 15 Wright Acres Road Active Under Contract

      $1,295,000

      15 Wright Acres Road, Bedford, NH 03110

      • 4 Beds
      • 4 Baths
      • 4,145 Sq.Ft.
    • 18 Souhegan Street For Sale

      $1,099,000

      18 Souhegan Street, Milford, NH 03055

      • 9 Beds
      • 5 Baths
      • 4,548 Sq.Ft.
    • 18 Souhegan Street For Sale

      $1,099,000

      18 Souhegan Street, Milford, NH 03055

      • 7 Beds
      • 5 Baths
      • 4,548 Sq.Ft.
    • 432 Mountain Road For Sale

      $949,900

      432 Mountain Road, Concord, NH 03301

      • 4 Beds
      • 4 Baths
      • 3,827 Sq.Ft.
    • 3 High Gate Drive Active Under Contract

      $824,900

      3 High Gate Drive, Bedford, NH 03110

      • 3 Beds
      • 3 Baths
      • 2,510 Sq.Ft.
    • 42 Horne Road For Sale

      $735,000

      42 Horne Road, Belmont, NH 03220

      • 3 Beds
      • 3 Baths
      • 2,000 Sq.Ft.
    • 28 Olde Lantern Road Active Under Contract

      $699,000

      28 Olde Lantern Road, Bedford, NH 03110

      • 5 Beds
      • 5 Baths
      • 4,333 Sq.Ft.
    • 11 Myrtle Street Active Under Contract

      $610,000

      11 Myrtle Street, Milford, NH 03055

      • 4 Beds
      • 3 Baths
      • 2,142 Sq.Ft.
    • 214 Maplehurst Avenue For Sale

      $530,000

      214 Maplehurst Avenue, Manchester, NH 03104

      • 5 Beds
      • 4 Baths
      • 2,280 Sq.Ft.
    • 53 Seaverns Bridge Road Active Under Contract

      $499,900

      53 Seaverns Bridge Road, Amherst, NH 03031

      • 3 Beds
      • 1 Bath
      • 1,224 Sq.Ft.
    • 4 Knightsbridge Drive Unit: 206 Active Under Contract

      $250,000

      4 Knightsbridge Drive Unit: 206, Nashua, NH 03063

      • 1 Bed
      • 1 Bath
      • 648 Sq.Ft.
    • 7 Swift Lane For Lease

      $3,500/mo

      7 Swift Lane, Merrimack, NH 03054

      • 2 Beds
      • 2 Baths
      • 2,144 Sq.Ft.
    View All

    Follow Me On Instagram